Bize Ulaşın 0 212 356 85 90
GÜRSOYLAR

Cortizo Alüminyum Sürme Sistemler

4900 ISI YALITIMLI SÜRME SİSTEM

Sürme kapi ve pencere sistemlerinde estetik görüntü saglayan orta kenet kalinligi sadece 35 mm.dir.

36 mm cam kalınlığı kullanımı sayesinde, yüksek ısı yalıtımı ve ses yalıtımı performans sağlar.
240 kg. ağırlığında ve 2200 (L) x 2600 (H) mm ölçülerinde açılır kanat yapmak mümkündür.

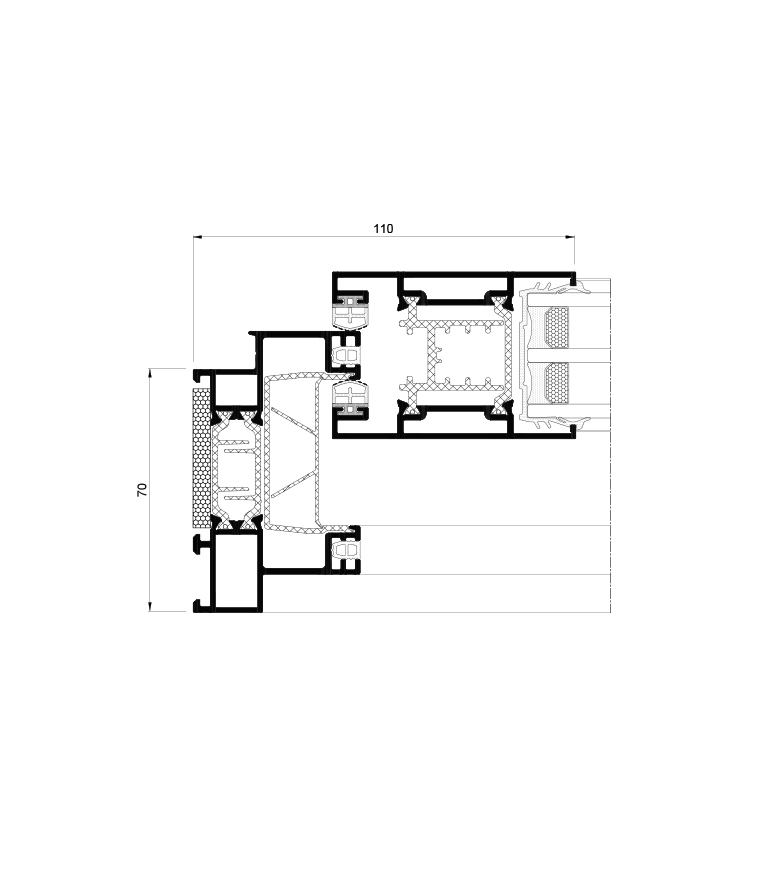
Maksimum cam kalınlığı : 36 mm
Açılım Tipleri: 2,3,4 ve 6 Kanatlı Sürme
3 Ray İmkanı
Kesitler: Kasa 70 mm - 3 ray 126 mm - Kanat 48 mm
Profil Kalınlığı: 1,6 mm
Polyamid Bariyer genişliği Kasa 35 mm
Maksimum Ölçüler/Kanat: Genişlik (L): 2.200 mm -- Yükseklik (H): 3.000 mm
Maksimum Ağırlık / Kanat: 240 Kg

Çift renk yapılma imkanı vardır.
Renkli toz boya (RAL,hareli ve sable)
Ahşap görünümlü toz boya
Anti-bakteriyel toz boya
Eloksal

Özellikler

Geçirgenlik
Uw = 1,2 (W/m²K)
Lütfen cam kalınlıkları ve ebatları için danışınız.
Maksimum Ses Yalıtımı
Rw=40 dB
Hava geçirimsizliği
(EN 12207) CLASS 4
Su sızdırmazlığı
(EN 12208) CLASS 7A
Rüzgar yükü dayanımı
(EN 12210) CLASS C5
CSTB Laboratuvarı DTA Sertifikası Avis technique
Test referansı
1,80 x 2,20 m / 2 Kanat

Teknik Döküman

4900 Isı Yalıtımlı Sürme Sistem

Uygulamalar

GÜRSOYLAR

Cortizo 4900 Isı Yalıtımlı Sürme Sistem

GÜRSOYLAR

Cortizo 4900 Isı Yalıtımlı Sürme Sistem

Gürsoylar | Cortizo 4900 Isı Yalıtımlı Sürme Sistem Gürsoylar | Cortizo 4900 Isı Yalıtımlı Sürme Sistem

GÜRSOYLAR

Cortizo 4900 Isı Yalıtımlı Sürme Sistem

Whatsapp İletişim Whatsapp