Bize Ulaşın 0 212 356 85 90
GÜRSOYLAR

Cortizo Alüminyum Sürme Sistemler

COR VISION SÜRME SİSTEM

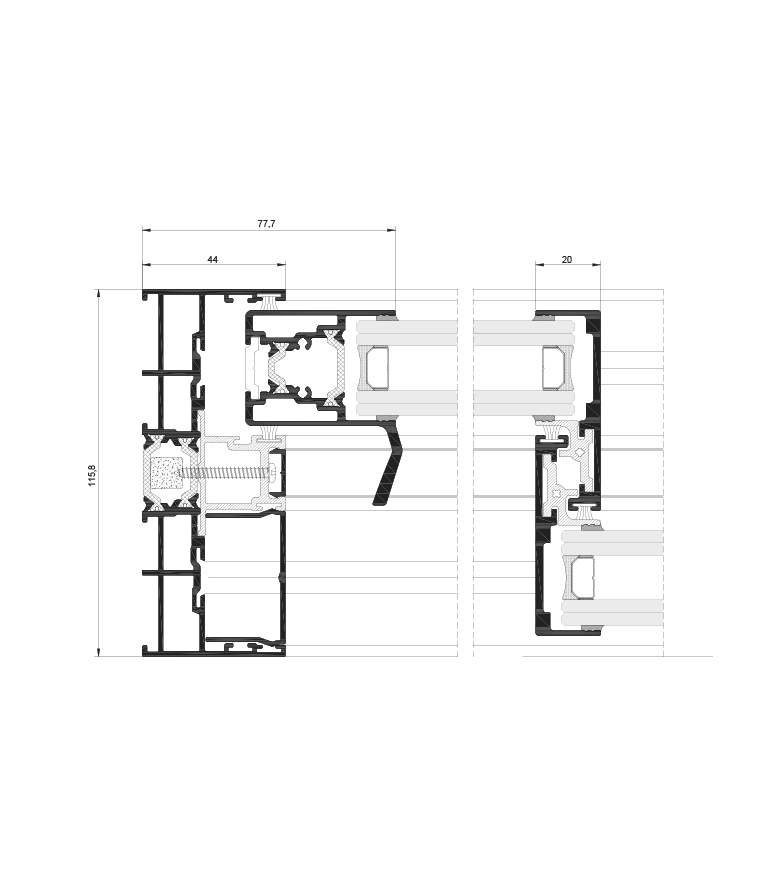
Görünen orta kenet birleşim kalınlığı sadece 20 mm

Maksimum cam yüzey alanı
Alt,üst ve yan kasa profillerini gizlemek mümkündür.
Cep sistemi uygulamak mümkündür.
Açılır kanatlarda 90° köşe birleşimleri dikmesiz geçilebilir.

Maksimum cam kalınlığı : 30 mm
Açılım Tipleri: 1,2,3,4, ve 6 sürme kanat
1,2, veya 3 ray imkanı
1 kanat + 1 sabit / 2 kanat + 1 sabit
1,2,3, ve 4 kanada kadar galandaj imkanı
Açılır kanatlarda 90° köşe birleşimleri dikmesiz kullanabilme imkanı
Kesitler: Kasa:116 mm - 182 mm - 3 ray - Kanat:37 mm
Profil Kalınlığı: 1,7 mm
Polyamid Bariyer genişliği 16 mm'den 24 mm'ye kadar
Maksimum Ölçüler/Kanat: Genişlik (L): 2.500 mm -- Yükseklik (H): 3.000 mm
Maksimum Ağırlık / Kanat: 320 Kg
Diğer açılım tipleri için maksimum ağırlık ve boyutları danışınız.

Çift renk yapılma imkanı vardır.
Renkli toz boya (RAL,hareli ve sable)
Ahşap görünümlü toz boya
Anti-bakteriyel toz boya
Eloksal

Özellikler

Geçirgenlik
Uw = 1,3 (W/m²K)
Lütfen cam kalınlıkları ve ebatları için danışınız.
Maksimum Ses Yalıtımı
Rw=41 dB
Hava geçirimsizliği
(EN 12207:2000) CLASS 4
Su sızdırmazlığı
(EN 12208:2000) CLASS 7A
Rüzgar yükü dayanımı
(EN 12210:2000) CLASS C5
Test referansı
1,23 x 1,55 m. 1 kanat + 1 sabit

Teknik Döküman

Cor Vision Sürme Sistem

Uygulamalar

GÜRSOYLAR

Cortizo Cor Vision Sürme Sistem

Gürsoylar | Cortizo Cor Vision Sürme Sistem Gürsoylar | Cortizo Cor Vision Sürme Sistem

GÜRSOYLAR

Cortizo Cor Vision Sürme Sistem

Gürsoylar | Cortizo Cor Vision Sürme Sistem Gürsoylar | Cortizo Cor Vision Sürme Sistem

GÜRSOYLAR

Cortizo Cor Vision Sürme Sistem

Whatsapp İletişim Whatsapp